Roland und Conny's Haus
der erste Wohnhausauftrag in meiner alten Heimat
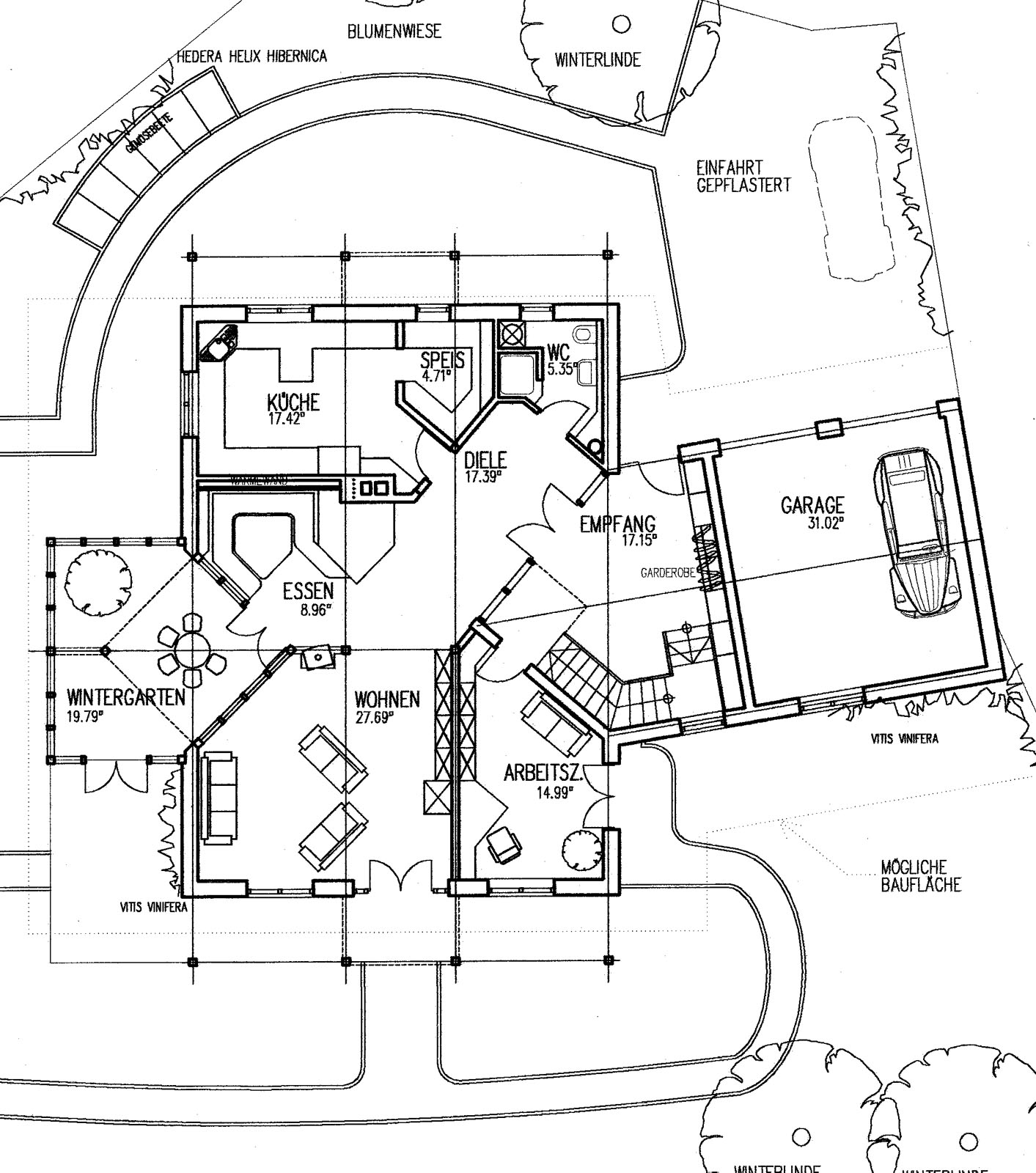
Zuerst geplant für eine Familie mit zwei Kindern - sind es inzwischen 5 Kinder und die Oma.
An einem leichten Süd- Westhang stehend konnte dieser nachträgliche Bedarf ohne größere Umplanungsmaßnahmen verwirklicht werden, denn aus dem Arbeitszimmer wurde ein Kinderzimmer, der Speicher zum Arbeitszimmer und der ebenerdige große Keller zur Wohnung für die Oma.
Einzig allein der Nachbar hatte gegen die Planung Einwände, und obwohl eine Doppelgaragen- Grenzbebauung per Bebauungsplan vorgeschrieben war, musste die Einzelgarage im Abstand von mehr als 3 m von der Grenze entfernt errichtet werden - nun fehlt natürlich eine Garage ... ja, ja die lieben netten Nachbarn ...
ARCHITEKT
Projekt-Jahr
Konstruktion
MAUERWERK mit Holzbalkendecken, sichtbarer Dachstuhl samt Küche und Treppenanlage
Ort
Waldershof
Fotos
ein etwas verwinkelter Grundriss, der die Grundstücksgrenzen aufgreift mit der Grenzbebauung. Deshalb steht die Garage schräg zum Hauptgebäude.
Dem anfangs vor Ort beauftragten Zimmerer war es irgendwann zu kompliziert, Josef Baumann holte das ganze schon angefangene Holz ab und verfrachtete es nach Penzling in Niederbayern in seine Zimmerei, wo wir es dann mit viel Freude abgebunden haben.





















